Será un espacio donde:
- Se impulsará la capacitación y fortalecimiento del sector social.
- Se promoverá la colaboración y la articulación entre distintos actores sociales.
- Se movilizarán recursos a las organizaciones.
- Se desarrollarán acciones a favor de las comunidades.
Terreno
Sobre Paseo de la Constitución, Col. Arboledas del Parque, sobre un terreno de 2,405 mts. que fue donado por el Municipio de Querétaro, con un valor de 13 millones de pesos.
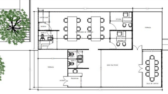
Primera etapa
Ante la necesidad de atender las demandas de la comunidad y debido a las limitaciones presupuestales actuales, la Fundación ha decidido implementar una estrategia de construcción en etapas para el Centro Causa Querétaro.
La Etapa 1 aprovecha la versatilidad de los contenedores marítimos para crear un espacio funcional y eficiente en el menor tiempo posible. Esta solución innovadora permitirá iniciar operaciones de manera rápida, sin comprometer la visión a largo plazo.
Los espacios de oficina, salas de juntas y áreas comunes equipadas con servicios básicos garantizarán un entorno productivo y acogedor para la comunidad. Además, la posibilidad de reutilizar los contenedores en el futuro representa una inversión estratégica y sostenible.
Etapa 2
Inversión
Se parte de este gran proyecto en Querétaro, adquiriendo un ladrillo conmemorativo que se colocará de manera permanente en el Muro de la Filantropía en el Centro Causa Querétaro. El ladrillo puede llevar el nombre de tu familia, de tus hijos, de tus nietos. Tu aportación nos dará recursos para la construcción del centro.
Donativo en efectivo
Donativo en especie
Donación de servicios
Acerca de nosotros
Somos una Asociación Civil sin fines de lucro fundada en el 2001, que trabaja a favor del sector social en el Bajío; cuya misión es el de promover el desarrollo comunitario a través de las mejoras de las capacidades del sector social.
Hemos movilizado más de
$149.5 Millones de pesos
en 25 años de trabajo
En 2024 impactamos a
9,208 personas
a través de diferentes programas
En 2024 acompañamos a
229
Organizaciones de la Sociedad Civil
Para sumarte a este gran proyecto da clic en el siguiente botón
